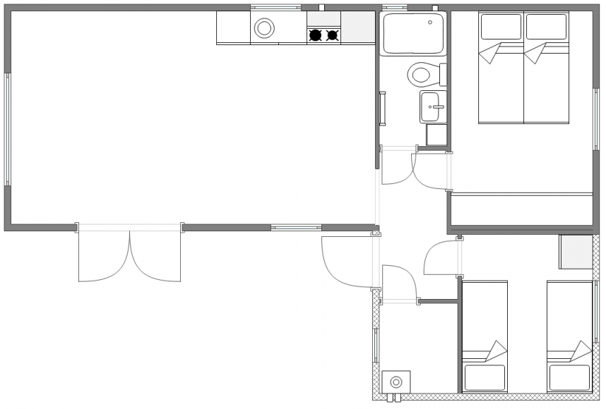
De PK- Chalets Duinhuis L is een zeer ruim model vanwege de luxe L-vorm. Door deze vorm is de Duinhuis heel ruim en geeft het zowel binnen en buiten een prettige sfeer. De grote ramen in de voorgevel zorgen voor veel licht in de woonkamer. Alle kamers in de Duinhuis zijn makkelijk toegankelijk, erg ruim en zeer modern ingericht.
Een chalet op maat van De Bergjes biedt verschillende mogelijkheden. Neem contact op met één van onze chalet-designers en laat u inspireren over de vele mogelijkheden.