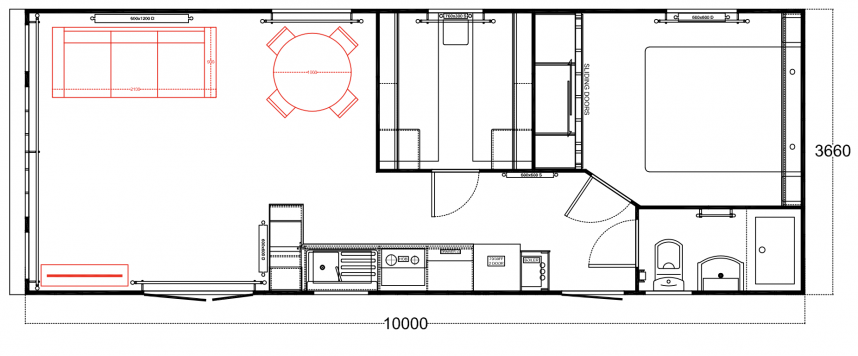
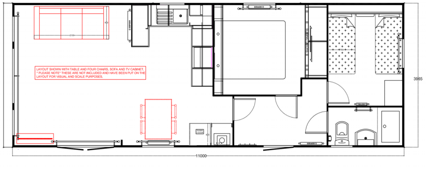
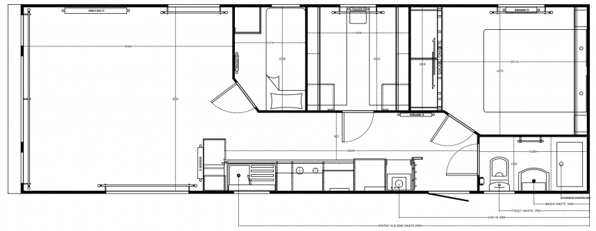
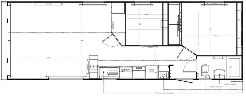
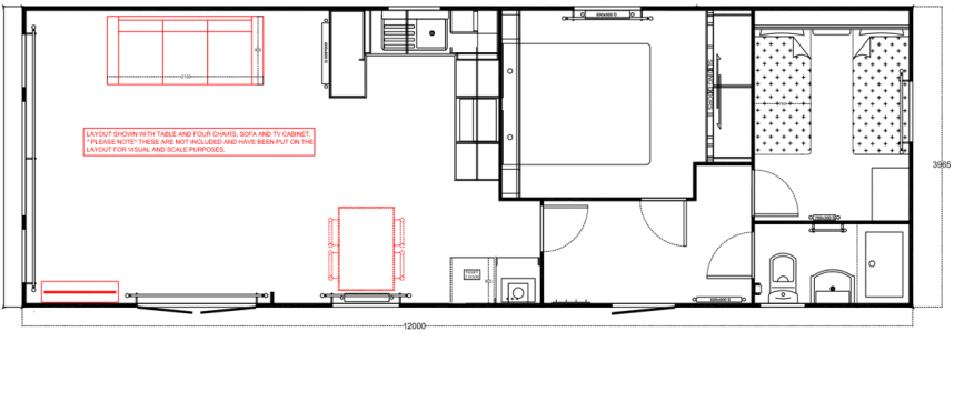
De Ocean stacaravan biedt alles wat u nodig heeft voor een comfortabel verblijf. De grote ramen en terrasdeuren zorgen voor een overvloed aan natuurlijk licht en een naadloze overgang naar buiten. De stijlvolle vinyl vloerbekleding in visgraatmotief geeft een moderne en warme uitstraling. De L-vormige keuken met elegante zwarte accenten is voorzien van een 4-pits fornuis en een ingebouwde koel/vries combinatie. Verder biedt de Ocean twee slaapkamers met voldoende opbergruimte en een badkamer met een ruime douchecabine en een toilet.