U kunt altijd even bellen: +31 475 495 079
Stacaravan outlet bekijken

De Bergjes MZ Dente

Voor € 85.950,-
Chalet op maat
De Bergjes MZ Dente De Bergjes MZ Dente De Bergjes MZ Dente De Bergjes MZ Dente De Bergjes MZ Dente De Bergjes MZ Dente De Bergjes MZ Dente De Bergjes MZ Dente De Bergjes MZ Dente
Daniëlle Maas
Daniëlle Maas Chalet-designer “Een chalet op maat kan volledig naar uw wensen worden gebouwd. Ik help u graag bij het samenstellen van uw droomchalet.”
Brochure downloaden Bel ons Ik wens meer informatie Plan jouw bezoek
Kenmerken
  • Merk:
    De Bergjes
  • Type:
    Dente
  • Te bezichtigen: Vraag onze medewerkers voor meer informatie.
  • Beschikbare formaten:
  • Slaapkamers:1
voor
€ 85.950,-
Bereken uw maandbedrag

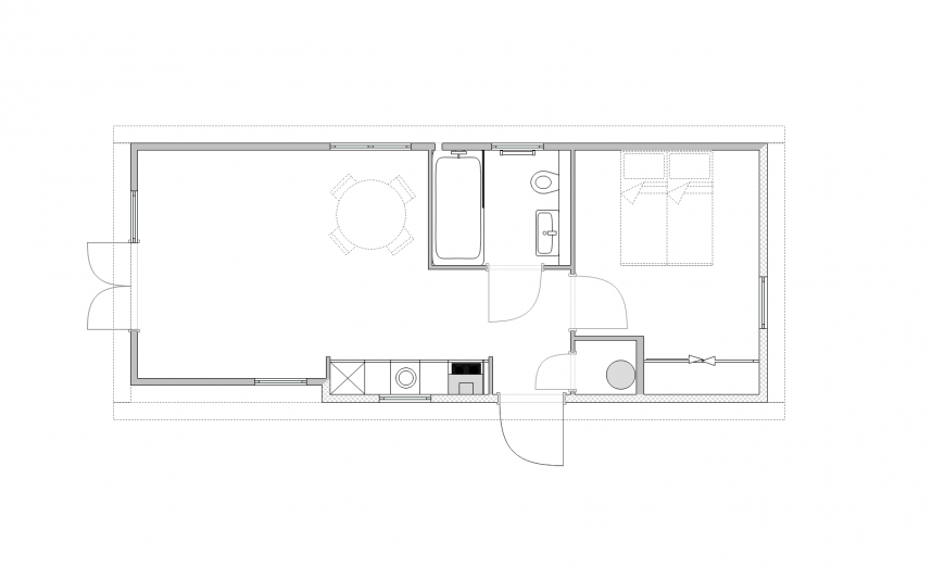
De Dente is hét instapmodel voor een mantelzorgwoning. Dit model is speciaal ontwikkeld voor de (pre-)mantelzorgbehoevende en voldoet aan alle basisbehoeften. Daarnaast is er veel focus gelegd op het creëeren van een aantrekkelijk exterieur en een praktische indeling. De Dente mantelzorgwoning biedt een prettige leef-kookruimte met openslaande tuindeuren, een ruime slaapkamer, een badkamer met inloopdouche en een technische ruimte. Kortom, de perfecte woning voor senioren die nadenken over hun leefomgeving voor de toekomst.

Plattegronden

Ook interessant voor u

De Bergjes Volente Deluxe 1100/2
De Bergjes Volente Deluxe 1100/2
voor € 82.950,-
Meer informatie
Swift S-pod 6
Swift S-pod 6
van € 90.950,-
Outletprijs
Meer informatie
De Bergjes Volente Deluxe 1100/2
De Bergjes Volente Deluxe 1100/2
voor € 82.950,-
Meer informatie
De Bergjes Volente Deluxe 1100/2
De Bergjes Volente Deluxe 1100/2
voor € 82.950,-
Meer informatie
Heeft u een vraag