U kunt altijd even bellen: +31 475 495 079
Stacaravan outlet bekijken

De Bergjes Manzor MZ

Voor € 125.890,-
Verkocht
De Bergjes Manzor MZ De Bergjes Manzor MZ De Bergjes Manzor MZ De Bergjes Manzor MZ De Bergjes Manzor MZ De Bergjes Manzor MZ De Bergjes Manzor MZ De Bergjes Manzor MZ
Lindy Peeters
Lindy Peeters Chalet-designer “Een chalet op maat biedt u oneindig veel mogelijkheden. Ik help u graag bij het samenstellen van uw droomchalet.”
Brochure downloaden Bel ons Ik wens meer informatie Plan jouw bezoek
Kenmerken
  • Merk:
    De Bergjes
  • Type:
    Manzor
  • Te bezichtigen: Vraag onze medewerkers voor meer informatie.
  • Beschikbare formaten:
  • Slaapkamers:1
Verkocht

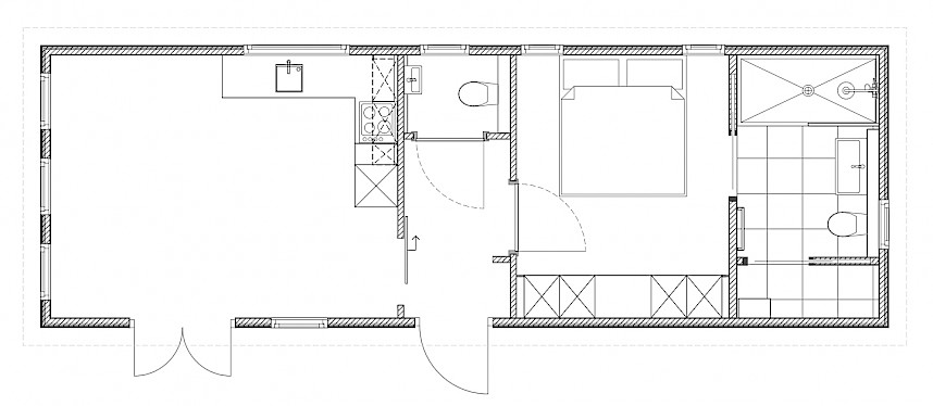
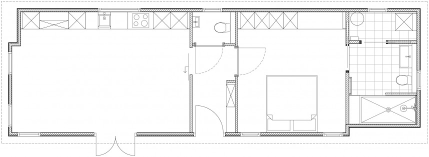
Er is weer een nieuw model toegevoegd aan ons De Bergjes assortiment, maak kennis met ons prachtige De Bergjes Manzor MZ.

Dit model heeft een maximale lengte van 15 meter, heeft een zeer praktische indeling en is het voorzien van luxeuse materialen en kleuren. Ook is dit model van alle gemakken voorzien. 

Het bijzondere aan dit chalet is dat het door een hal opgesplist wordt in twee gedeeltes, waarvan het linkergedeelte voorzien is van een mooie grote leefruimte met woonkamer en keuken. Deze worden met elkaar verbonden door een prachtige kastenwand, deze is van alle luxe voorzien. Ook is deze ruimte voorzien van prachtige raampartijen die de leefruimte voorzien van enorm veel daglicht. 

Het rechtergedeelte daarin tegen geeft een stukje privacy, hier bevindt zicht een prachtige ruimte slaapkamer met en-suite badkamer. 

Kortom dit model heeft voor ieder passende mogelijkheden en is dus heel breed inzetbaar. U kunt de Manzor volledig naar wens samenstellen. Neem contact op met één van onze chalet-designers en laat u inspireren over de vele mogelijkheden. 

 

Ook interessant voor u

All-in pakket
De Bergjes Rushmore 1290/2
De Bergjes Rushmore 1290/2
voor € 136.950,-
Meer informatie
De Bergjes Serie Bergline Lodge 1100/2 Super
De Bergjes Serie Bergline Lodge 1100/2 Super
van € 55.033,-
Outletprijs
Meer informatie
De Bergjes Serie Rimo Neo 1150/2
De Bergjes Serie Rimo Neo 1150/2
voor € 65.950,-
Meer informatie
De Bergjes serie Monviso 1100/2
De Bergjes serie Monviso 1100/2
van € 60.578,-
Outletprijs
Meer informatie
Heeft u een vraag